
CAMILLE JOYCE
Small spaces, real life
Mastère spécialisé TEC XXe (2024-2025)
This project focuses on the renovation of a 1911 HBM (Habitations à Bon Marché) social housing building, characterized by external galleries, shared services, and very small dwelling units.
Within a team of three, I was responsible for redesigning the standard housing unit, repeated throughout the building.
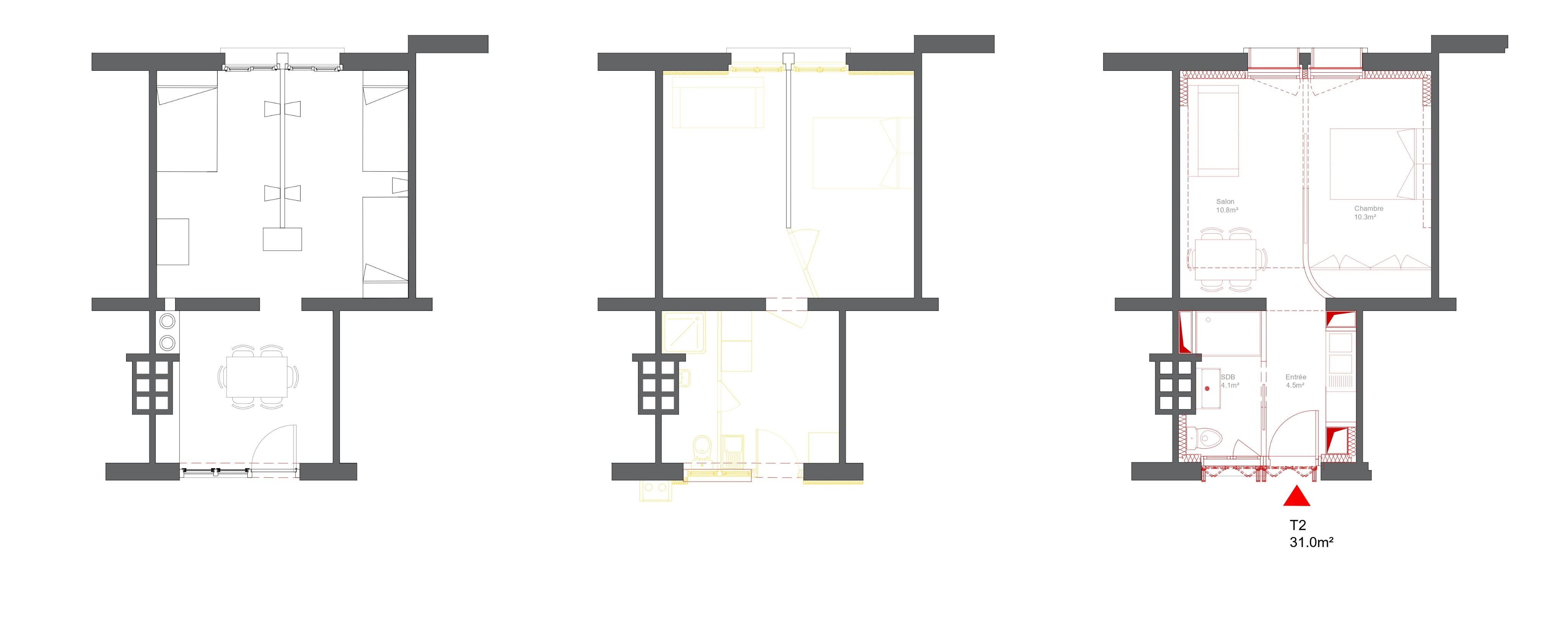
Originally a big single room unit, with exterior toilets, it became in 1986 a 2-room apartment with the addition of a bathroom and the closing of the main room.
With the new requirements (thermal upgrades, service integration to free the gallery) further reduces the usable space, resulting in a 31 m² unit. The project became an exercise in spatial efficiency and everyday use.
Après plusieurs hypothèses, le constat est clair: le logement doit être requalifié en studio.
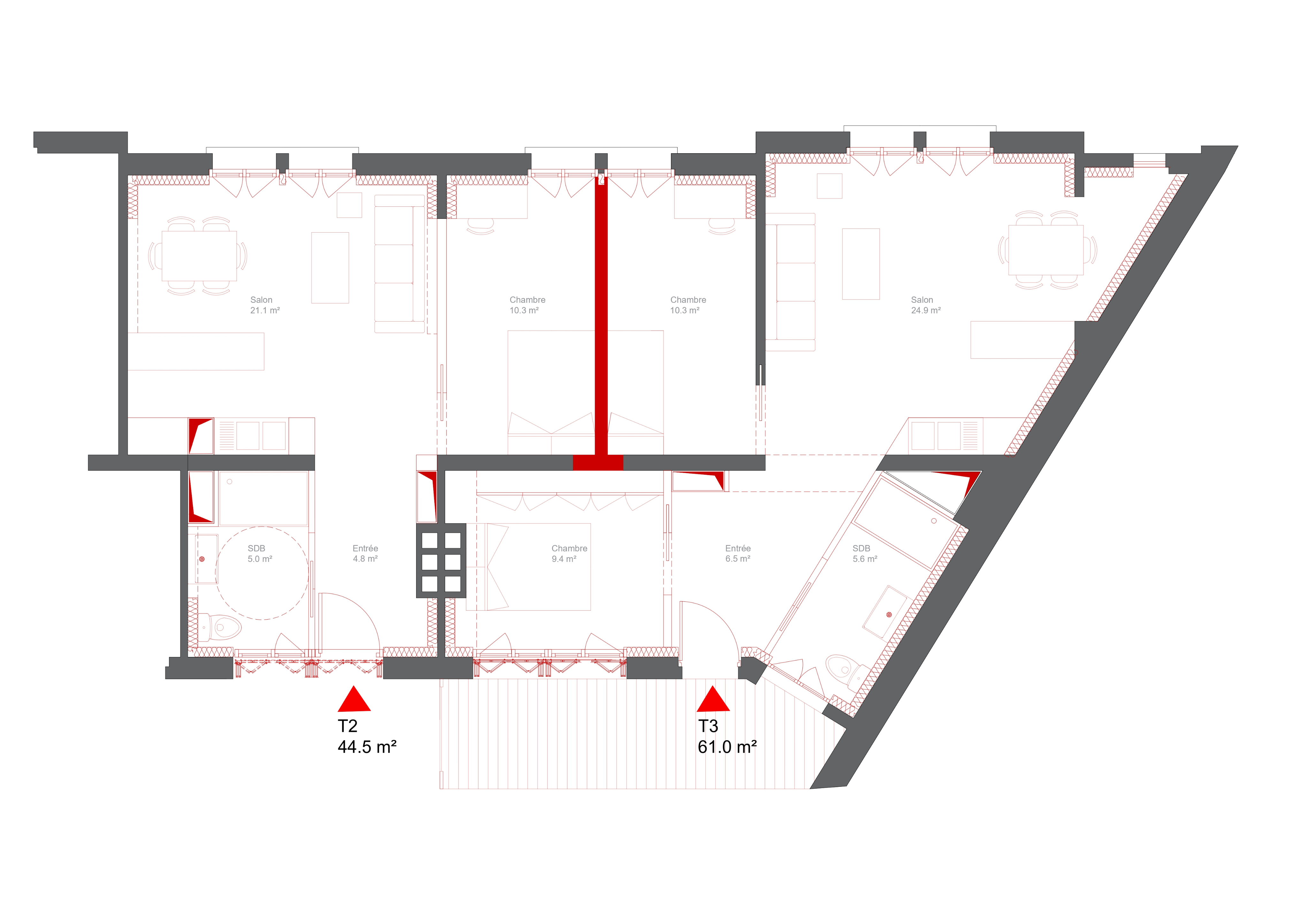
La réflexion s’élargit alors à l’échelle de l’étage grâce à la structure flexible et modulaire du bâtiment en combinant plusieurs cellules pour créer de nouvelles typologies, introduire de la modularité dans cette cellule répétitive.
On the gallery facade, I chose to add a system of folded perforated metal shutters, providing privacy and security, while maintaining light and ventilation.
Rather than showcasing, this project focuses on precision, scale, and lived experience.

CAMILLE JOYCE
Small spaces, real life
Mastère spécialisé TEC XXe (2024-2025)
This project focuses on the renovation of a 1911 HBM (Habitations à Bon Marché) social housing building, characterized by external galleries, shared services, and very small dwelling units.
Within a team of three, I was responsible for redesigning the standard housing unit, repeated throughout the building.
Originally a big single room unit, with exterior toilets, it became in 1986 a 2-room apartment with the addition of a bathroom and the closing of the main room.
With the new requirements (thermal upgrades, service integration to free the gallery) further reduces the usable space, resulting in a 31 m² unit. The project became an exercise in spatial efficiency and everyday use.
Despite multiple layout options, it seems inevitable to reclassify the unit as a studio. The design exploration then expanded to combining multiple units, creating more generous and flexible living spaces.
On the gallery facade, I chose to add a system of folded perforated metal shutters, providing privacy and security, while maintaining light and ventilation.
Rather than showcasing, this project focuses on precision, scale, and lived experience.

CAMILLE JOYCE
Small spaces, real life
Mastère spécialisé TEC XXe (2024-2025)
This project focuses on the renovation of a 1911 HBM (Habitations à Bon Marché) social housing building, characterized by external galleries, shared services, and very small dwelling units.
Within a team of three, I was responsible for redesigning the standard housing unit, repeated throughout the building.
Originally a big single room unit, with exterior toilets, it became in 1986 a 2-room apartment with the addition of a bathroom and the closing of the main room.
With the new requirements (thermal upgrades, service integration to free the gallery) further reduces the usable space, resulting in a 31 m² unit. The project became an exercise in spatial efficiency and everyday use.
Despite multiple layout options, it seems inevitable to reclassify the unit as a studio. The design exploration then expanded to combining multiple units, creating more generous and flexible living spaces.
On the gallery facade, I chose to add a system of folded perforated metal shutters, providing privacy and security, while maintaining light and ventilation.
Rather than showcasing, this project focuses on precision, scale, and lived experience.