
CAMILLE JOYCE
Image © Sony Entertainment
Draftperson - Art Department
Sony Entertainment (2024)
For Karate Kid: Legends, I worked in the Art Department on the design and construction review of multiple studio-built sets forming a New-York-style street.
Although credited as Draftperson- as it was my first experience in set design, I was responsible for drafting and detailing several sets. With the Production Designer’s references, I produced construction drawings and details at a level required for fabrication and on-set use.
As construction progressed, Art Directors sourced real architectural elements on site. I worked closely with them to revise layouts, adjust dimensions and redesign details, like the pharmacy below, ensuring the sets remained visually coherent, buildable, and aligned with the script.
Image © Sony Entertainment
Image © Sony Entertainment
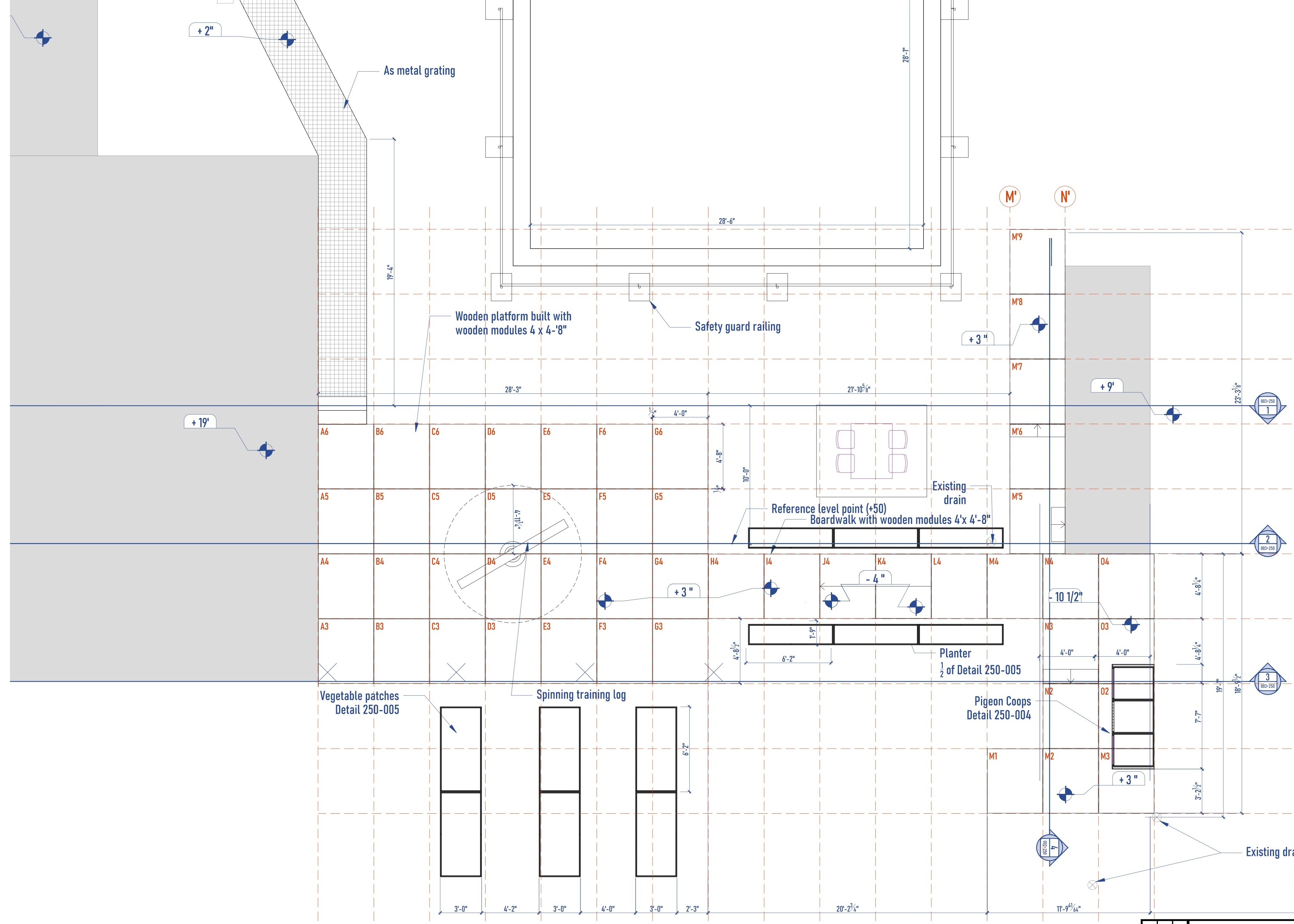
I also worked on a location-based set: a rooftop in downtown Montreal converted for the movie into a karate training space. The selected rooftop featured patinated copper structures and a strong city backdrop.
Photo : [Félix Larivière]
Photo: [Félix Larivière]
The construction faced significant constraints: an uneven existing surface, limited access, a small freight elevator and no material storage. In response, we designed a modular wooden floor system, made of transportable panels. The system created the rough, improvised dojo desired while allowing fast assembly, transport efficiency, and precise leveling.
Image © Sony Entertainment
Image © Sony Entertainment
Working directly with the contractor and the Art Department Supervisor, I laid out the grid, defined reference levels, and integrated the scenic elements into the build.
Image © Sony Entertainment
Image © Sony Entertainment

CAMILLE JOYCE
Image © Sony Entertainment
Draftperson - Art Department | Sony Entertainment (2024)
For Karate Kid: Legends, I worked in the Art Department on the design and construction review of multiple studio-built sets forming a New-York-style street.
Although credited as Draftperson- as it was my first experience in set design, I was responsible for drafting and detailing several sets. With the Production Designer’s references, I produced construction drawings and details at a level required for fabrication and on-set use.
As construction progressed, Art Directors sourced real architectural elements on site. I worked closely with them to revise layouts, adjust dimensions and redesign details, like the pharmacy below, ensuring the sets remained visually coherent, buildable, and aligned with the script.
Image © Sony Entertainment
I also worked on a location-based set: a rooftop in downtown Montreal converted for the movie into a karate training space. The selected rooftop featured patinated copper structures and a strong city backdrop.
Photo : [Félix Larivière]
Photo: [Félix Larivière]
The construction faced significant constraints: an uneven existing surface, limited access, a small freight elevator and no material storage. In response, we designed a modular wooden floor system, made of transportable panels. The system created the rough, improvised dojo desired while allowing fast assembly, transport efficiency, and precise leveling.
Image © Sony Entertainment
Image © Sony Entertainment
Image © Sony Entertainment
Working directly with the contractor and the Art Department Supervisor, I laid out the grid, defined reference levels, and integrated the scenic elements into the build.
Image © Sony Entertainment
Image © Sony Entertainment

CAMILLE JOYCE
Image © Sony Entertainment
Draftperson - Art Department | Sony Entertainment (2024)
For Karate Kid: Legends, I worked in the Art Department on the design and construction review of multiple studio-built sets forming a New-York-style street.
Although credited as Draftperson- as it was my first experience in set design, I was responsible for drafting and detailing several sets. With the Production Designer’s references, I produced construction drawings and details at a level required for fabrication and on-set use.
As construction progressed, Art Directors sourced real architectural elements on site. I worked closely with them to revise layouts, adjust dimensions and redesign details, like the pharmacy below, ensuring the sets remained visually coherent, buildable, and aligned with the script.
Image © Sony Entertainment
I also worked on a location-based set: a rooftop in downtown Montreal converted for the movie into a karate training space. The selected rooftop featured patinated copper structures and a strong city backdrop.
Photo: [Félix Larivière]
The construction faced significant constraints: an uneven existing surface, limited access, a small freight elevator and no material storage. In response, we designed a modular wooden floor system, made of transportable panels. The system created the rough, improvised dojo desired while allowing fast assembly, transport efficiency, and precise leveling.
Image © Sony Entertainment
Working directly with the contractor and the Art Department Supervisor, I laid out the grid, defined reference levels, and integrated the scenic elements into the build.
Image © Sony Entertainment